
FZW32戶外高壓隔離真空負荷開關主要為城網農網建設的改造而設計,適用額定電壓12kV,三相交流50Hz的供電網絡中,該產品底架采用不銹鋼材料 或熱鍍鋅外加防紫外線保護涂料的碳鋼,確保了機體在戶外環境下的正常運行,零部件采用不銹鋼材料,確保了負荷開關的耐用性,穩定性和防水、防鹽霧 等性能。
技術參數
FZW32技術參數 |
|
|
|
|
| |
額定電壓 |
| kV | 12 |
| 40.5 | |
額定頻率 |
| Hz | 50 |
| 50 | |
額定電流 |
| A | 630 |
| 1250 | |
額定有功負載開斷電流 | A | 630 |
| 1250 | ||
額定閉環開斷電流 | A | 630 |
| 1250 | ||
5%額定有功負載開斷電流 | A | 31.5 |
| 62.5 | ||
額定電纜充電開斷電流 | A | 10 |
| 25 | ||
額定空載變壓器開斷容量 | kVA | 1600 |
| 1600 | ||
額定開斷電容器組電流 | A | 100 |
| 100 | ||
1min 工頻耐受電壓:真空斷口、相間、相對地/隔離斷口 | kV | 42/48 |
| 68/95/110 | ||
雷電沖擊耐受電壓:相間、相對地/隔離斷口 | kV | 75/85 |
| 185/215 | ||
額定短時耐受電流(熱穩定) R | kA | 20 |
| 25 | ||
額定短路持續時間 | S | 4 |
| 4 | ||
額定峰值耐受電流(動穩定) | kA | 50 |
| 63 | ||
額定短路關合電流 | kA | 50 |
| 63 | ||
機械壽命 |
| 次 | 10000 |
| 10000 | |
真空滅弧觸頭允許磨損厚度 | mm | 0.5 |
| 0.6 | ||
手動操作力矩 |
| N.m | ≤200 |
| ≤300 | |
|
| 觸頭開距 | mm |
| 5±1 | |
|
| 平均分閘速度 | m/s |
| 1.1±0.2 | |
負荷開關真空滅弧室裝配調整 |
|
|
|
|
|
|
|
| 三相分閘不同期 | ms |
| ≤5 | |
|
| 三相合閘不同期 | ms |
| ≤2 | |
|
| 帶電體之間及相對地距離 | mm |
| >200 | |
|
| 輔助回路電阻 | μΩ |
| ≤300 | |
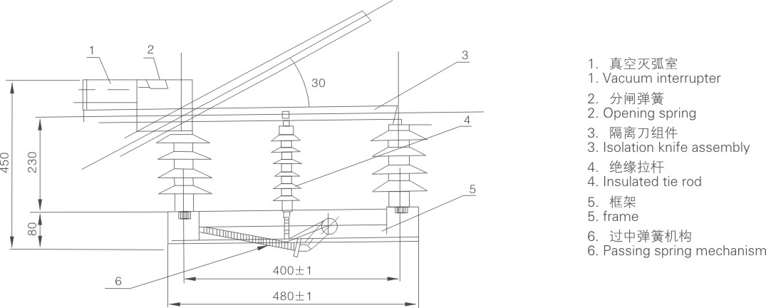
FZW32-12外形尺寸圖
Copyright ? 浙江西開電氣有限公司 備案號: 技術支持:鼎諾傳媒