
西開電氣生產的SRM系列充氣式SF6金屬封閉全絕緣系列環網開關柜,已通過國家高低壓電器質量監督檢驗中心的型式試驗。產品廣泛應用于10kV, 24kV配電系統,是城鄉各類用戶輸配電系統的選用產品。 開關柜為模塊化單元模式,可根據不同用途進行組合;由固定式單元組合和可擴張式單元兩大類,滿足各種輸配電對緊湊型開關柜的要求。 SRM系列充氣式開關柜式一個完全密封的系統,其所帶電部件以及開關封閉在不銹鋼的本體內。整個開關裝置不受外部環境影響,從而可以確保運行安 全可靠,并且免維護。通過選擇可擴展母線,可以實現任何組合,達到全模塊化。同時可提供智能化自動化方案,將現場安裝和調試的工作量降到最低。
技術特性
1、SF6氣體壓力 | 20℃下為0.4bars(相對壓力) | 5、防護等級 |
|
|
| SF6氣室 | IP67 |
2、年泄露率 | ≤0.25‰/年 | 熔斷器筒 | IP67 |
|
| 開關柜外殼 | IP3X |
3、浸水試驗 | 水下施加0.3bars的壓力/24小時 | 6、母線 |
|
|
| 開關柜內母線 | 400mm2 Cu |
4、燃弧試驗 | 有滅弧器25kA/1S無滅弧器16kA/1S | 開關柜接地母線 | 150mm2 Cu |
|
| 螺栓直徑 | M10 |
|
| 7、氣室不銹鋼殼厚度 | 3.0 mm |
技術參數
Srm技術參數 |
|
|
|
|
|
|
|
|
| C模塊 | F模塊 | V模塊 | Cb模塊 | ||
名稱 | 單位 | 負荷開關 | 組合電器 | 真空開關 | 隔離/接地開關 | 真空斷路器 | 隔離/接地開關 |
額定電壓 Rated Voltage | Kv | 12/24 | 12/24 | 12/24 | 12/24 | 12/24 | 12/24 |
工頻耐受電壓 | Kv | 42/50 | 42/50 | 42/50 | 42/50 | 42/50 | 42/50 |
雷電沖擊耐受電壓 | Kv | 95/125 | 95/125 | 95/125 | 95/125 | 95/125 | 95/125 |
額定電流 | A | 630/630 | 注1 | 630/630 |
| 1250/630 |
|
額定轉移電流 | A |
| 1750 |
|
|
|
|
閉環開斷電流 | A | 630/630 |
|
|
|
|
|
電纜充電開斷電流 | A | 135/135 |
|
|
|
|
|
5%額定有功負載開斷電流 | A | 31.5/- |
|
|
|
|
|
接地故障開斷電流 | A | 200/150 |
|
|
|
|
|
接地故障時電纜 | A | 115/87 | 注2 | 20/16 |
| 25/20 |
|
充電的開斷電流 |
|
|
|
|
|
|
|
短時開斷電流 | Ka |
| 注2 | 50/40 | 50/40 | 63/50 | 63/50 |
關合能力 | Ka | 63/50 |
|
|
|
|
|
短時耐受電流2秒 | Ka | 25/- |
|
|
|
|
|
短時耐受電流3秒 | Ka | -/20 |
| 20/16 | 20/16 | 31.5/25 | 31.5/25 |
機械壽命 | 次 | 5000 | 3000 | 5000 | 2000 | 10000 | 5000 |
注:1)取決于熔斷器的電流額定值;2)受限于高壓熔斷器
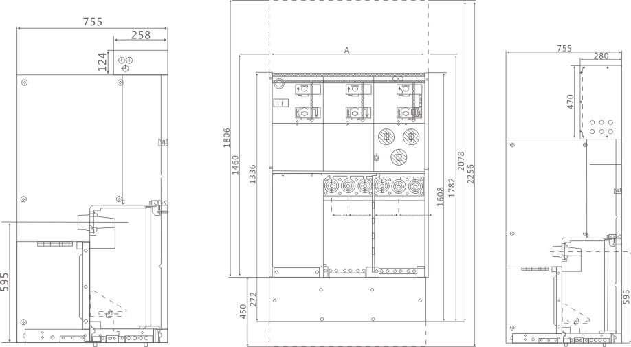
?外形尺寸圖
?
Copyright ? 浙江西開電氣有限公司 備案號: 技術支持:鼎諾傳媒