
FLW34 pole mounted SF6 load break switch is used for breaking rated voltage 12/24/40.5kV,rated current 630A、50/60Hz power distribution system, closing load current and over load current of power system, it could separate automatically track sections of power distribution which faults occur. The switch is matched with electronic controller which is with the latest technology. The switch has manual, motor, remote operation modes. The electronic controller would be installed inside the stainless steel box, so it could be used in various climate conditions. Besides that, the wire/wireless modem installed inside control box could achieve remote monitoring and controlling. It’s easy and convenient for installation the switch on pole, and that could reduce the execution cost.
Technical Information
Technical Specification |
|
|
|
Products Type | FLW34-12 | FLW34-24 | FLW34-40.5 |
Maximum System Voltage | 15kV | 25.8kV | 40.5kV |
Rated Continuous Current | 630A | 630A | 630A |
Rated Frequency | 50/60Hz | 50/60Hz | 50/60Hz |
Short Time Withstand Current(rms) | 20kA/4sec | 25kA/1sec | 20 kA/1sec |
Mainly Active Load Current | 630A | 630A | 630A |
Number of Load-break Operations | 400times | 400times | 400times |
Short-circuit Making Current(peak) | 50kAp | 50kAp | 50kAp |
Number of Making Operations | 5times | 5 times | 5times |
Cable Charging Current | 25A | 25A | 25A |
Line Charging Current | 1.5A | 1.5A | 2A |
Closed Loop Circuit Current | 630A | 630A | 630A |
Transformer Magnetizing Current | 22A | 22A | 22A |
| 45kV | 50kV | 70kV |
Power Frequency Withstand Current Test | 50kV | 60kV | 95kV |
| 50kV | 60kV | 110kV |
Impulse Withstand Current Test(1.2x50μs) | 85kV | 150kV | 195kV |
| 95kV | 150kV | 215kV |
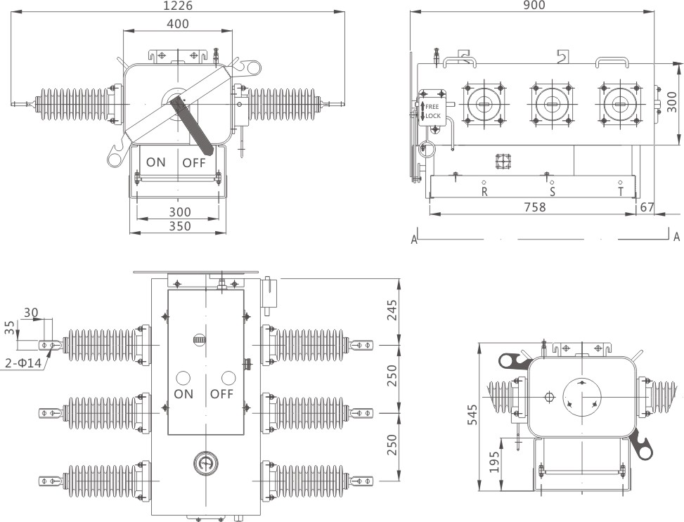
Overall and installation dimensions
Copyright ? Zhejiang Xikai Electric Co. , Ltd. 技術支持:鼎諾傳媒